Проведем 3D обмеры наземным лазерным сканером

Высочайшая детальность получаемых материалов.
Миллиметровая точность.
Любая площадь сканирования.
Проведем 3D обмеры наземным лазерным сканером
Высочайшая детальность получаемых материалов.
Миллиметровая точность.
Любая площадь сканирования.
Проведем 3D обмеры наземным лазерным сканером
Выберите удобный способ связи
Сканирование промышленных объектов
Фасадная съемка
Обмеры объектов культурного наследия
3D обмеры помещений
Строительный контроль
Проведём 3D обмер объектов строительства и территории
По облаку точек строим 3D модель или BIM модель с разным уровнем проработки (LOD/LOI 100, LOD/LOI 200, и т.д.), формируем чертежи 2D.
Получаете достоверный и наглядный материал для простоты и точности принятия управленческих решений.
Выполним обмер фасадов за несколько часов
Для измерений Вам не надо заказывать вышку, дальность нашего лазерного сканера — 50−70м с точностью 2−3 мм.
Выдаем результат в необходимой системе координат.
Создадим точный цифровой двойник, безопасно для объекта и исполнителя
Сканирование не требует прямого контакта
с объектом, что минимизирует риск повреждения.
Данные навсегда остаются у вас и вы можете вернуться к ним в любое время
Выполним точный обмер помещения любой сложности
Сканирование административных зданий, объектов недвижимости для реконструкции и дизайн-проектов.

Особенно актуально в помещениях большой площади, со сложной геометрией (кривые или радиусные стены), а также на объектах с высокими потолками
Проведём анализ отклонений существующего объекта
от проектной модели
Фиксация дефектов и отклонений существующего объекта от идеальной поверхности или проектной модели.
Построение карты высот с требуемой шкалой. Чертежи. Формирование отчёта.
Проведём 3D обмер объектов строительства и территории
По облаку точек строим 3D модель или BIM модель с разным уровнем проработки (LOD/LOI 100, LOD/LOI 200, и т.д.), формируем чертежи 2D.
Получаете достоверный и наглядный материал для простоты и точности принятия управленческих решений.
Выполним обмер фасадов за несколько часов
Для измерений Вам не надо заказывать вышку, дальность нашего лазерного сканера — 50−70м с точностью 2−3 мм.
Выдаем результат в необходимой системе координат.
Создадим точный цифровой двойник, безопасно для объекта и исполнителя
Сканирование не требует прямого контакта
с объектом, что минимизирует риск повреждения.
Данные навсегда остаются у вас и вы можете вернуться к ним в любое время
Выполним точный обмер помещения любой сложности
Сканирование административных зданий, объектов недвижимости для реконструкции и дизайн-проектов.

Особенно актуально в помещениях большой площади, со сложной геометрией (кривые или радиусные стены), а также на объектах с высокими потолками
Проведём анализ отклонений существующего объекта
от проектной модели
Фиксация дефектов и отклонений существующего объекта от идеальной поверхности или проектной модели.
Построение карты высот с требуемой шкалой. Чертежи. Формирование отчёта.
Проведём 3D обмер объектов строительства и территории
По облаку точек строим 3D модель или BIM модель с разным уровнем проработки (LOD/LOI 100, LOD/LOI 200, и т. д.), формируем чертежи 2D.
Получаете достоверный и наглядный материал для простоты и точности принятия управленческих решений.
Выполним обмер фасадов за несколько часов
Для измерений Вам не надо заказывать вышку, дальность нашего лазерного сканера — 50−70м с точностью 2−3 мм.
Выдаем результат в необходимой системе координат
Создадим точный цифровой двойник, безопасно для объекта и исполнителя
Сканирование не требует прямого контакта
с объектом, что минимизирует риск повреждения. Данные навсегда остаются у вас и вы можете вернуться к ним в любое время
Выполним точный обмер помещения любой сложности
Сканирование административных зданий, объектов недвижимости для реконструкции и дизайн-проектов.
Особенно актуально в помещениях большой площади, со сложной геометрией (кривые или радиусные стены), а также на объектах с высокими потолками
Проведём анализ отклонений существующего объекта
от проектной модели
Фиксация дефектов и отклонений существующего объекта от идеальной поверхности или проектной модели.
Построение карты высот с требуемой шкалой. Чертежи. Формирование отчёта.
К нам возвращаются за качественной
работой и высоким сервисом
Скорость сканирования
Получение точной геометрии помещения
Удобный формат
итоговых материалов
Простота проверки
точности материалов
Цех без внутренних перегородок площадью 3000 кв. м — около 4 часов. Фасадная съёмка объекта в среднем — 2−4 часа.
Точность съемки 2−3мм. Дальность — 60 метров.
Площадь, форма и высота помещения для нас не проблема.
Предоставляем чертежи в формате .dwg и .pdf.
3D/BIM модель — .rvt, .pla, .ifc.
Облако точек — .rcp, e57, las.
Облако точек навсегда остается у Вас и вы можете выполнить контрольные замеры и передать его другим специалистам.
3
Создаём 3D/BIM модели, формируем 2D чертежи
Работа с нами проходит комфортно,
оперативно, в срок и с удовольствием
Работаем в программах Revit, Archicad, Civil, Credo и др.

Построим 3D/BIM модель по полученному облаку точек, оформим чертежи в 2D.

Предоставим анализ отклонений от проектной модели.
2
Сканирование объекта и выдача облака точек
От вас необходимо: предоставить доступ в помещение и минимизировать перемещение по объекту.

После сканирования и обработки материалов выдаём Вам сшитое облако точек, очищенное от посторонних шумов, в необходимом для вас формате и системе координат координат.
1
Изучение ТЗ
и заключение договора
От вас нужны: цель обмера, площадь объекта, фото объекта, местоположение объекта, план БТИ или др.план.

Выставляем КП и согласовываем его с Вами.

Заключаем договор.

Рассчитайте примерную стоимость работ

по 3D обмеру внутри помещений и фасадов

Фасадная съемка
Сканирование площадных территорий
Обмерные работы для дизайн-проектов
Предварительный расчет. Не является публичной офертой. За точной стоимостью обращайтесь к нашему специалисту.
Время и стоимость сканирования
0 смены
0 рублей
Стоимость сканирования
Время сканирования
В стоимость сканирования входит:
— выезд специалиста на объект (бесплатно по Нижнему Новгороду),
— проведение сканирования,
— сшивка,  обработка и выдача облака точек в необходимом формате
— инструкция по загрузке облака точек в специализированные программы
Стоимость зависит от плотности застройки и требуемой плотности облака точек

Предварительный расчет. Не является публичной офертой. За точной стоимостью обращайтесь к нашему специалисту

Рассчёт стоимости лазерного сканирования внутри квартир, коттеджей

Время сканирования
Стоимость сканирования
0 мин
0 рублей
В стоимость сканирования входит:
— выезд специалиста (бесплатно по Нижнему Новгороду),
— проведение сканирования
— сшивка, обработка и выдача облака точек в необходимом для Вас формате,
— инструкция по загрузке облака точек в специализированные программы

Обмерный 2D план

Включает в себя: план с информацией об общей геометрии, расположении стен, окон, дверных проёмов без развёрток (Чертеж в формате .DWG/.PDF)

3D модели + 2D чертежи

Включает в себя: 3Д модель в программе Revit или Archicad, пакет чертежей и 3д виды. Выдаётся в формате .pla или .rvt. Альбом с чертежами в формате .pdf и .dwg.
В стоимость сканирования входит:
— выезд специалиста на объект (бесплатно по Нижнему Новгороду),
— проведение сканирования,
— сшивка,  обработка и выдача облака точек в необходимом формате
— инструкция по загрузке облака точек в специализированные программы
Стоимость зависит от плотности застройки и требуемой плотности облака точек

Стоимость зависит от плотности застройки и требуемой плотности облака точек

Обмерный 2D план

В стоимость сканирования входит чертеж в формате .dwg или .pdf
Предварительный расчет. Не является публичной офертой. За точной стоимостью обращайтесь к нашему специалисту
Время и стоимость сканирования
0 мин
0 рублей
Стоимость сканирования
Время сканирования
В стоимость сканирования входит:
— выезд специалиста на объект (бесплатно по Нижнему Новгороду),
— проведение сканирования,
— сшивка,  обработка и выдача облака точек в необходимом формате
— инструкция по загрузке облака точек в специализированные программы
Стоимость зависит от плотности застройки и требуемой плотности облака точек

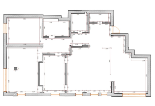
Обмер квартиры с перегородками
Задача
Сроки
Заказчик получил
S = 165 кв.м.
Требовалось провести 3D обмер, выдать дизайнеру 3D модель в программе Archicad и альбом с чертежами.
Сканирование — 1 час.
Проект в программе Archicad подготовлен за 3 рабочих дня.
Облако точек в формате .e57 подгружено в проект Archicad
Выполнена 3D модель с коммуникациями по облаку точек
Настроены планы и виды в проекте (обмерочный план, план с коммуникациями, развертки по всем помещениям, 3D виды)
Сформирован альбом с чертежами в формате .pdf
Обмер квартиры с перегородками
Задача
Сроки
Заказчик получил
S = 165 кв.м.
Требовалось провести 3D обмер, выдать дизайнеру 3D модель в программе Archicad и альбом с чертежами.
Сканирование — 1 час.
Проект в программе Archicad подготовлен за 3 рабочих дня.
Облако точек в формате .e57 подгружено в проект Archicad
Выполнена 3D модель с коммуникациями по облаку точек
Настроены планы и виды в проекте (обмерочный план, план с коммуникациями, развертки по всем помещениям, 3D виды)
Сформирован альбом с чертежами в формате .pdf
Обмер квартиры open space
Задача
Сроки
Заказчик получил
S = 250 кв.м., потолки около 3,7 м, 2 этаж с террасой, радиусные стены. Требовалось сделать 3Д обмер и выдать облако точек для дальнейшей работы в программе Archicad.
Время сканирования — 1,5 часа.
На следующий рабочий день было выдано облако точек.
Облако точек в формате .e57 для Archicad и .rcp для смежников (вентиляция и кондиционирование)
Обмер квартиры open space
Задача
Сроки
Заказчик получил
S = 250 кв.м., потолки около 3,7 м, 2 этаж с террасой, радиусные стены. Требовалось сделать 3Д обмер и выдать облако точек для дальнейшей работы в программе Archicad.
Время сканирования — 1,5 часа.
На следующий рабочий день было выдано облако точек.
Облако точек в формате .e57 для Archicad и .rcp для смежников (вентиляция и кондиционирование)
Обмер действующего аэропорта
Задача
Сроки
Заказчик получил
S=3500 кв.м.
Требовалось провести наземное лазерное сканирование административного здания и выдать обмерные планы, планы фасадов, планы потолков, план кровли, маркировочные планы (отделочных материалов, дверей, оконных проемов) и 3D моделирование.
3 дня сканирования в реальных цветах объекта.
14 дней на камеральную обработку облака точек, моделирование и подготовку чертежей.
Облако точек формата .rcp, очищенное от шумов и нестационарных объектов
3D модель в формате .rvt и обмерные чертежи в формате .dwg и .pdf
Проект в Navisworks с обмерными планами
Цветные панорамы с каждой точки сканирования (более 350 шт)
Технический отчёт.
Обмер действующего аэропорта
Задача
Сроки
Заказчик получил
S=3500 кв.м.
Требовалось провести наземное лазерное сканирование административного здания и выдать обмерные планы, планы фасадов, планы потолков, план кровли, маркировочные планы (отделочных материалов, дверей, оконных проемов) и 3D моделирование.
3 дня сканирования в реальных цветах объекта.
14 дней на камеральную обработку облака точек, моделирование и подготовку чертежей.
Облако точек формата .rcp, очищенное от шумов и нестационарных объектов
3D модель в формате .rvt и обмерные чертежи в формате .dwg и .pdf
Проект в Navisworks с обмерными планами
Цветные панорамы с каждой точки сканирования (более 350 шт)
Технический отчёт.
Работаем с различными отраслями
и помогаем им делать свое дело лучше
Строительство генерирующих и электросетевых объектов
Министерство имущественных и земельных отношений
Научно-производственное предприятие «Форт XXI»
Лидер по производству металла ПАО «ГМК «Норильский никель»
Агентство по сохранению и развитию объектов исторической среды
Инженерно-технические решения в нефтегазовом комплексе
Инженерные изыскания ООО «ОМГЕО»
Проектный институт реконструкции и строительства ЗАО «ПИРС»
АО Проектно-изыскательский институт «Ленгипроречтранс»
Строительство генерирующих и электросетевых объектов
Научно-производственное предприятие «Форт XXI»
Лидер по производству металла ПАО «ГМК «Норильский никель»
Министерство имущественных и земельных отношений
Что интересует наших клиентов?